Nesting season begins at Pinnacles
Love is in the air at Pinnacles National Park and around San Benito County as a variety of raptors, birds of prey, begin their nesting season. Raptors are a common and beautiful sight at Pinnacles during the nesting season, which typically runs from January to August. As specialized hunters, raptors have powerful beaks and talons for tearing apart prey, and exceptional eyesight for locating food from great distances. Most raptors can see even small prey animals clearly from almost 2 miles away, thanks to their telescopic vision.
Getting Out: Hidden in the San Mateo foothills
It isn’t often that I learn of a state park in the Bay Area that I have never heard of before. Hidden in the foothills of the San Mateo Coast, Burleigh Murray Ranch State Park waits humbly and quietly for someone to notice.
Personal Blog: Wally Gator
on the new restaurant complex, what's going to happen to the playground/park. Kids and adults love it.
Police: Man arrested with guns, drugs
Police arrested a Morgan Hill man who was in possession of a cache of illegal weapons and narcotics, according to authorities.
Four arrested at MH hotel on suspicion of warrants, drugs
Four people with warrants and narcotics were arrested at a Morgan Hill hotel, according to police.
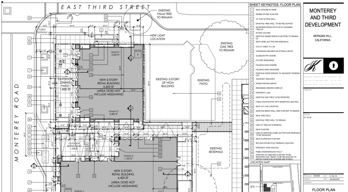
Zoning approved for four new downtown restaurants
A group of developers and restaurateurs based in Mountain View and Santa Clara plan to bring four regional brands to downtown Morgan Hill, transforming a key site into a hub of dining, drinking and socializing.The Morgan Hill City Council March 2 approved the planned development zoning for the property at the corner of Third Street and Monterey Road, the former site of Simple Beverages which the Redevelopment Agency purchased in 2009.Developer Ken Rodrigues told the council that his plans for the property include four restaurants owned by The Opa! Group within two new buildings on the site. These restaurants are Opa, a Greek restaurant; Mo’s…the Breakfast & Burger Joint; Willard Hicks (steaks and American food); and Tac-Oh!, the group’s fledgling “designer Mexican food” restaurant that recently opened a location in Willow Glen.The two buildings, which would both front the Monterey Road side of the property, would be 5,600 and 6,425 square feet, respectively. The project proposal includes an outdoor dining patio with a fire pit and other features that would serve both buildings and all four restaurants.The four restaurants currently have locations throughout the South Bay, including in Palo Alto, Campbell, Walnut Creek, Redwood City and others, Rodrigues explained.In downtown Campbell, three of the restaurants (excluding Tac-Oh!) are neighbors and share an outdoor dining area, similar to the concept proposed in Morgan Hill.“If you see it in Campbell, it is the place to be almost any night of the week,” Rodrigues told the council. “It’s just roaring. (The location) went from above average to something nobody had ever anticipated.” He added the addition of Willard Hicks to that location is recent, and only increased the traffic, sales and activity of the area.Rodrigues, who partnered with Imwalle Properties to purchase the Morgan Hill site from the city last summer, said all four restaurants feature full-service alcohol bars on site. He plans to do the same in Morgan Hill, but will have to request a conditional use permit from the city to allow such uses.A “general statement of operations” written by the developer, submitted to City Hall, further describes the project. The proposal includes a pedestrian walkway from the parking garage traversing between the two new restaurant buildings.“The architecture of both buildings speaks directly to the vernacular of downtown Morgan Hill. The height and scale of each building mirrors those of its neighboring buildings,” the developer’s description reads.A low wall on one side—and a wrought-iron fence on the other—will separate the outdoor dining areas from the public sidewalk.These areas will feature a wooden overhead trellis to provide shade and host growing vines on one side, with string lights above the diners, tables, chairs and umbrellas on the other, according to the developer.The design of the patio addresses grade changes in the property that make the site susceptible to flooding during heavy rains, city staff said. The developer has proposed raising the building out of the 100-year floodplain, and build both structures on a single grade.Proposed hours are 7 a.m. to midnight for Mo’s, and 11 a.m. to midnight for the other restaurants.Dan Creighton, owner of Huntington Station next door to the Third Street proposal, said he recently dined at Willard Hicks in Campbell for research, and he enjoyed the food. He noted that Morgan Hill might not be as crowded as other communities where the four-restaurant chain group hosts its other locations, and thus might not be as successful here.But he’s not worried about competition, he said.“More business downtown is good for everyone,” Creighton said.The RDA purchased the 18,400-square foot Simple Beverages site in 2009 for about $1.5 million. The state of California shut down the RDA in 2012, but allowed the city to develop the property for the purposes it originally intended: a mixed-use retail, restaurant, entertainment or commercial project that stimulates the downtown economy and attracts visitors and family-friendly activity.Thus, Rodrigues and Imwalle purchased the property from the city last year for $525,000, after the city bought it from a trust that controls former RDA assets until they are ready to be put to use.The city has identified the Simple Beverages site as one of the key “opportunity sites” for the future of downtown Morgan Hill, and The Opa! Group’s owner, Angelo Heropoulos, seems to agree.“The amazing corner location along with the investment by the city into downtown Morgan Hill helped support our decision to open all four concepts,” Heropoulos said in a Feb. 26 letter to City Hall. “For us, the two elements that make this location stand out (are) the large unique outdoor dining patio that has been integrally designed into the project and the new city garage that will help support critical, convenient customer parking.”
Council awards Rymer $10,800 salary raise
The Morgan Hill City Council added a 5-percent pay increase to City Manager Steve Rymer’s salary, and awarded him additional benefits in a contract extension last week.The new contract with Rymer, who has served in his current position at City Hall since 2013, will bring his total salary to about $228,000—an increase of about $10,800 over last year, according to a report from Mayor Steve Tate.The contract was approved 4-0 at the March 2 council meeting, with Tate absent.The pay raise is based on a “glowing” evaluation of Rymer’s performance by the five-member council, Mayor Pro Temp Rich Constantine said. The council conducts an annual performance evaluation of its city manager.“Steve Rymer has exceeded our expectations every year,” Constantine said.The extended contract, which will expire June 30, 2018, will also give Rymer 20 additional hours of administrative leave each year. His maximum allowed annual leave accrual is increased to 40 hours in the new contract.The council has awarded Rymer raises, also based on positive reviews of his performance, in 2014 and 2015. His salary in 2013, when he was first appointed city manager, was $199,500.Rymer’s contract also includes a $500 monthly vehicle allowance, a $900,000 housing loan offered to the city manager in 2014 and a $110,000 home improvement loan offered in 2015.
March 7 Prep Roundup: Live Oak baseball, softball
Live Oak lost 6-0 to Bellarmine on March 1 to fall to 1-4 heading into play on Wednesday at Prospect.
Another Alternative: A Family-Directed Home Funeral
Join the Bay Area Funeral Consumers Association (BAFCA) on Sunday, April 17, for their annual free event at the garden Embarcadero Room in the beautiful Palo Alto Rinconada Library from 1:00 – 3:00 p.m. The Palo Alto Rinconada Library is located at 1213 Newell Rd., Palo Alto, CA 94303. The event is open to the public. BAFCA is a chapter of a national nonprofit organization of volunteers who help inform and protect consumers when shopping for funeral goods or services. The free event will include an informative talk, social hour, refreshments, and funeral planning educational resources.
For love of country
A full-sized American flag sways gentlyoutside Lawson Sakai’s front door, and several miniature versions decorate his living room. Another big one is folded into a triangular military display box on his mantle. The mouse pad next to his computer is red, white and blue.















